A Universidade Federal de Santa Maria, campus de Cachoeira do Sul, convidou no dia 15 de junho para uma apresentação dos alunos do Curso de Arquitetura e Urbanismo, relativa aos estudos que estão em andamento visando à restauração da antiga estação ferroviária de Ferreira:
Estação
Ferroviária de Ferreira:
Diagnóstico
do objeto de intervenção e seu entorno
Diretrizes
de intervenção.
O Movimento Pela Restauração da
Estação de Ferreira convidou dois grupos de alunos das Profs Luiza Segabinazzi
Pacheco Delongui e Paula Olivo de Projeto VI do Curso de Arquitetura e
Urbanismo da UFSM para apresentar as conclusões de suas entrevistas com os
moradores dos arredores da Estação Ferreira e as diretrizes que definiram e
utilizarão na cadeira de Projeto VI .
O evento aconteceu dia 15 de
junho, quarta-feira, às 15 h na sala 102 do campus da UFSM, com a mediação da
prof. Paula Olivo.
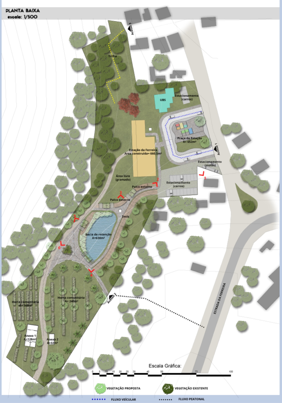
O exercício que os alunos apresentaram foi o de diagnóstico
do objeto de intervenção e entorno e estabelecimento de diretrizes de
intervenção.
Grupo 01: Helena Torres, Júlia Buriol, Letícia Laureano,
Luísa Tonet e Pedro Henrique Taschetto:
Grupo 02: Gustavo Januário, Mariana Flores, Juliano Freitas e
Tailor Bueno:
No final do evento também foram apresentadas no telão as pranchas de
Projeto VI 2021/1 de 3 grupos de alunos:
Ariel
Zaghetti, Martiele Wilhelm e Tainara Seefeldt:
Alessandra
Alves e Karoline Falkembach
As professoras da UFSM
Luciani Lens e Maria Luiza Zanatta de Souza prestigiaram a apresentação
dos alunos.
Estiveram presentes a presidente do COMPAHC Ione Sanmartin
Carlos e a secretária Mirian Ritzel, que também representou o Arquivo
Histórico.
A Amicus participou
da reunião no Campus da UFSM/Cachoeira, com a presidente Marisa Timm Sari,
Eliane Schuch e Dariely Gonçalves.
A 24° Coordenadoria Regional de Educação foi representada
por Elisabete Silva e a Escola Estadual Zilah da Gama Mór, por sua vice-diretora
Lenise Coletto Furlan.
Membros do Movimento pela Restauração presentes na reunião:
Cristina da Gama Mór, Lia Carolina Breyer Schlabitz, Elizabeth Thomsen e Renato Thomsen.
